1. Accueil
  2. Architecture commerciale
  3. Appartements & Airbnb
  4. Rénovation complète d'un studio de 35 m2 en plein coeur d'Aix en Provence transformé en location Airbnb
Retour

Rénovation complète d'un studio de 35 m2 en plein coeur d'Aix en Provence transformé en location Airbnb

Nous contacter
L'agence de design et d'architecture d'intérieur fondée par Cécile Le Ven, architecte d'intérieur  est très souvent appelé pour travailler sur des espaces dédiés à la location: il faut donc imaginer des histoires à raconter et surtout savoir se différencier de la concurrence de plus en plus nombreuse à developper ce type de produit.

L'agence d'architecture d'intérieur et de décoration d'intérieur fondée par Cécile Le Ven sait s'entourer d'équipes professionnelles pour pouvoir répondre à tous types de projets : mas, appartements, bastides , hôtels particuliers et autres types d'architecture.

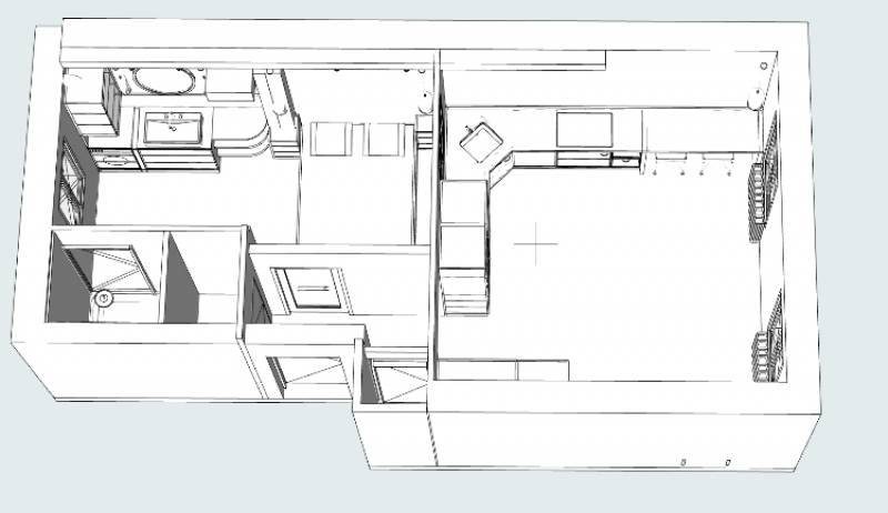
Les clients souhaitaient  avoir un pied à terre dans le Sud de la France pour pouvoir l'utiliser pour eux ou le louer en airbnb en location saisonnière 

Nous avons travaillé sur une enveloppe assez claire avec un grès cérame effet marbre au sol pour amener de la lumière et de l'élégance aux volumes .

L'agencement  a été dessiné sur mesure afin de pouvoir répondre aux besoins fonctionnels des clients , l'agence de décoration  levendesign a dessiné un meuble en biais qui comprend la partie dressing et la partie meuble de TV - bibliothèque . Les clients ont décidé de meubler l'ensemble avec des meubles édités par Minotti .
Ils amènent beaucoup de caractère à cet ensemble de 35 m2.
m2 35m2
Un studio rénové : location saisonnière
Nous écrire
Les champs indiqués par un astérisque (*) sont obligatoires
Nous contacter
Une question ? Un projet ? N'hésitez pas nous appeler / envoyer un mail.